Большая квартира из зеркальных “однушек”

Семья с двумя разнополыми детьми приобрела две расположенные рядом зеркальные однокомнатные квартиры, планируя объединить их в одну общую жилплощадь. К счастью, разделяющая “однушки” стена несущей не являлась, поэтому физических препятствий для воплощения этого замысла не было.

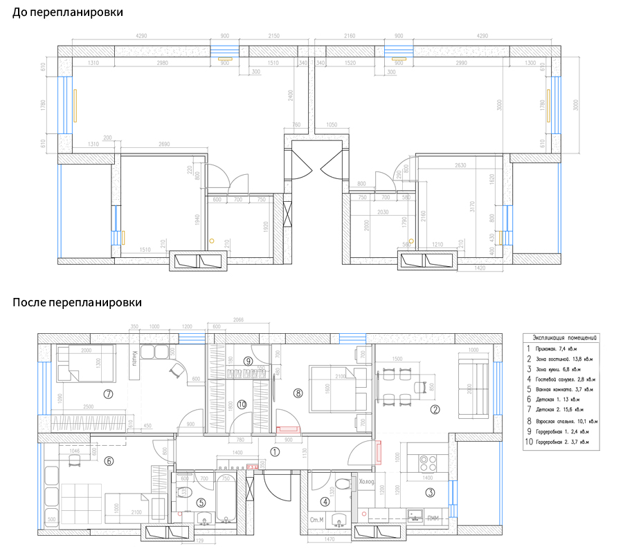
Для того, чтобы получить просторную квартиру с большой кухней-гостиной и тремя полноценными спальнями, решено было присоединить одну из двух лоджий.

Особенных предпочтений по дизайну у заказчиков не было – только невысокая сложность отделки. Поэтому материалы и цветовые решения подбирались постепенно посредством “примерки” их на визуализациях. Процесс получился долгим, но увлекательным.

 

От столовой и гостиной зоны кухонную часть отделяет полуостров с небольшой барной стойкой и электроплитой
Стена над полуостровом отделана той же плиткой под бетон, что и пол в зоне готовки. Кухонный фартук оформлен белой плиткой в форме шестигранников с контрастной темной расшивкой.
Окна, упирающиеся прямо в потолок, не позволяют опустить его уровень по всей площади помещения и встроить обычные светильники. В каждой комнате из этой ситуации пришлось искать особое решение.
В зоне кухни потолок опущен только над шкафами. Там проходят трассы вентиляции. Светильники же используются накладные.
Телевизор над обеденным столом встроен в декоративный шкафчик, дверь которого имеет широкое отверстие посередине. Сквозь нее к телевизору крепится подвижный кронштейн, а провода, розетки и дополнительное оборудование скрыты внутри.
Широкий диван занимает всю стену вдоль окна. Ниша выделена ярким голубым текстилем и имеет собственную подсветку в виде парных светильников-подвесов. Такие же размещены и над барной стойкой.
Отдельно стоящий холодильник аккуратно встроен в кухонный гарнитур.
Основная проблема длинного и не очень широкого коридора - отсутствие изолированной прихожей.  Переходить из комнаты жильцам придется мимо входной двери. Верхняя одежда будет храниться в гардеробной, но тумба и навесной шкаф для тапочек, электрощитка и мелочей все же решено было установить.
Поскольку они располагаются прямо в проходе, дизайнер постарался органично вписать их в интерьер при помощи необычной отделки.
Поперечные вставки под дерево, растянутые по полу и стенам, визуально "рассекают" коридор на отдельные участки. Это позволяет избежать ощущения тоннеля.
За зеркальной дверью со скрытой дверной коробкой расположена гардеробная для всей семьи. Часть ее отделена перегородкой и имеет вход из спальни родителей.
Тактильная плитка с рисунком под гальку украшает участки стены над придверной тумбой и у входа в кухню-гостиную.
Изюминкой скромной по размеру родительской спальни стала акцентная стена, украшенная белыми рейками. Они продолжаются и на потолке, до выступа. За боковыми рейками скрывается потолочный шторный карниз и светодиодная подсветка. Зеркальные вставки по двум сторонам "работают" на расширение пространства.
Дверь в родительскую часть гардеробной "растворяется" в стене благодаря системе скрытой дверной коробки. Поверхность двери оштукатурена также, как и стены.
Светильник над кроватью только один. Второй мешал бы открыванию окна. При необходимости жильцы смогут использовать настольную лампу.
Гостевой санузел оформлен лаконично. Стиральная машина встроена под столешницу, на которую также смонтирован умывальник. За дверцами скрыты сантехническая гребенка, проточный водонагреватель и корзина для грязного белья.
Комната девочки-школьницы оформлена в светлых тонах с мятными и терракотовыми акцентами.
Вытянутое помещение разделено стеллажом на две зоны: спальную и рабочую. Обе они имеют по окну.
В рабочей зоне есть как угловой ученический стол, так и ящик-скамейка для чтения и отдыха. За подсветку обоих мест отвечает одна регулируемая настенная лампа.
В комнате мальчика, который пока не дорос до школы, преобладают бирюзовый, желтый и древесные оттенки. Всю стену вдоль окна занимает скамья с ящиками для игрушек.
Кровать встроена в нишу, образованную Г-образным шкафом, а над игровой зоной висит специальная доска-стенд со сменяемой экспозицией детских рисунков.
Необычная форма комнаты с выступами вдоль стен продиктовала комбинированную отделку стен: обоями трех разных оттенков. Выступ над столом обыгрывается полками переменной глубины
В узкой части полки больше подходят для книг и картин. Глубокие полки могут использоваться для игрушек.
Ванная комната оформлена белой плиткой под мрамор. С белоснежными стенами помещение кажется более просторным, чем оно есть на самом деле.
Ниши над навесным унитазом оборудованы подсветкой, а их задние стенки оформлены зеркалами. Благодаря этому комната еще сильнее увеличивается в размерах визуально.
Стеклянное ограждение на ванной, скорее всего, получит раздвижную конструкцию. Тогда тумба с раковиной не будут мешать стеклянным створкам.
 

 

 


Площадь квартиры до перепланировки 76 квадратных метров.

Местоположение квартиры — г. Киев, Украина.

Стоимость проекта — 50 000 рублей.