Квартира с тремя спальнями в Киеве

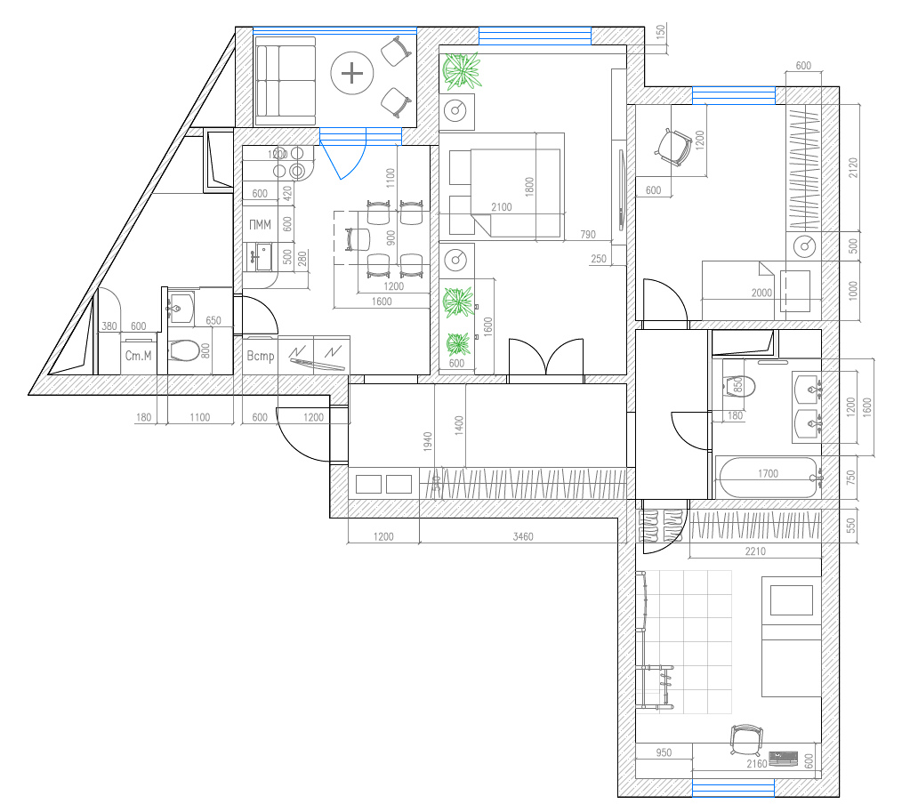
Молодая семья с двумя детьми задумала переезд в квартиру, где у всех будет свое личное пространство. Зоной совместного времяпровождения решили сделать кухню, а остальные комнаты отвели под спальни. Гостевую комнату организовали на лоджии, а один из санузлов разделили на гостевой туалет и вместительную кладовку-постирочную.

Хозяйка квартиры, Татьяна, уже знала, каким хочет видеть свое новое жилье. Но до начала ремонта ей хотелось убедиться, что ее идеи будут хорошо сочетаться между собой и не навредят функционалу.

После того, как визуализации были готовы, часть первоначальных затей действительно  пришлось пересмотреть.  Совместный мозговой штурм с дизайнером позволил найти оптимальные решения для каждого спорного момента.

 

 
 
 
 
 
 
 
 
 
 
 
 
 
 
 
 
 
 
 
 
 
 
 
 
 
 

 

 

 


Площадь квартиры до перепланировки 80 квадратных метров.

Местоположение квартиры — Украина, г. Киев.

Стоимость проекта — 55 тысяч рублей.