Студия в полтора этажа на бывшей фабрике

Так случилось, что мне выпала удача вести стразу три проекта в московском комплексе Kleinhouse. Оригинально здание было построено в 1914 году по проекту архитектора Клейна и работало как чаеразвесочная фабрика.

В 2019 году после масштабной реновации фабрика обрела новую жизнь в качестве комплекса лофт-апартаментов. Один из тех объектов, где есть все: и прекрасное расположение, и визуально очень удачный альянс старой и новой архитектуры, и целая россыпь непростых задачек, которые предстояло решать владельцам апартаментов и их дизайнерам на этапе ремонта. Выступающие балки на потолке, ниши в стенах, частичные подъемы пола,  некомпактные и в неудачном месте проложенные коммуникации, потолок из профлиста, очень темные и, наоборот, очень светлые студии. В общем, все как мы любим.

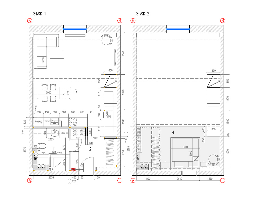
Преимуществом первой студии стала ее площадь – 49 квадратных метров. Из трех, попавших мне в работу, она оказалась самой просторной. Но и самой сложной. Низкий этаж и расположение внутри двора заставили нас бороться за каждый луч света, а массивные потолочные балки превратили возведение антресольного этажа в настоящую головоломку.

 

Проект

 

При весьма скромной общей высоте помещения - всего 420 сантиметров, сложностей добавили массивные металлические балки, отнимающие над головой еще почти 20 сантиметров. Из-за этого площадь антресоли пришлось заметно урезать, а конструкцию лестницы усложнить так, чтобы она "подныривала" под несущий элемент.
Еще более объемные балки по периметру помещения вдоль потолка и вертикальные по углам студии решили заштукатурить и выкрасить в цвет стен.
Зашивать утилитарный потолок из профнастила мы тоже не стали, а лишь покрасили его в серый цвет, чтобы немного облагородить. В результате он сохранил воздушность благодаря переменной высоте.
Ограждения второго этажа решено было сделать из стекла. Так они не преграждают свет. Отсутствие горизонтальных элементов в их конструкции позволяет визуально вытянуть помещение, зрительно "приподняв" потолок.
По настоянию владельцев студии и из опасения, что в помещении будет темно, для стен был выбран очень светлый оттенок серого. В отделке преобладает монохром: белая мебель, серый текстиль, черные графичные элементы. Мы намеренно старались сделать интерьер вертикально направленным, чтобы низкий потолок не давил на обитателей.
Оживляют помещение теплые поверхности из натурального дерева и дозированный, но яркий декор.
Проблема низких потолков оказалась особенно очевидной в прихожей и миниатюрном санузле.
Ради того, чтобы добавить в прихожую больше воздуха, мы не стали зашивать перекрытия антресольного этажа, а только замаскировали их черной краской.
Дверь-невидимка в санузел, деревянные рейки и зеркала в потолок - все призвано скорректировать пропорции помещения.
Оформление прихожей являет собой верх аскетизма. За счет этого она кажется более просторной.
При этом мест для хранения в ней предостаточно. Мы установили встроенные шкафы слева от двери  и напротив нее.
Неудивительно, что в санузле владельцам студии захотелось чего-то более яркого.
После серии "примерок" мы остановились на акцентах вишневого цвета.
В остальном душевая комната продолжает тему остальной квартиры: мягкий лофт со светло-серой плиткой под бетон, серыми фасадами шкафов и поверхностями, имитирующими дерево.
Все коммуникации, которые в студии располагались некомпактно и не совсем удачно, удалось скрыть за дверцами технического шкафа. Туда же спрятали небольшой накопительный водонагреватель.
 

 

 

 

 

Реализация

 

 
 
 
 
 
 
 
 
 
 
 
 
 
 
 
 
 
 

 

 


Площадь апартаментов до перепланировки 49 квадратных метров

Местоположение квартиры — г. Москва, Басманный район, м. Бауманская.

Стоимость проекта — 45 000 рублей.