Трешка со шкафом-кроватью

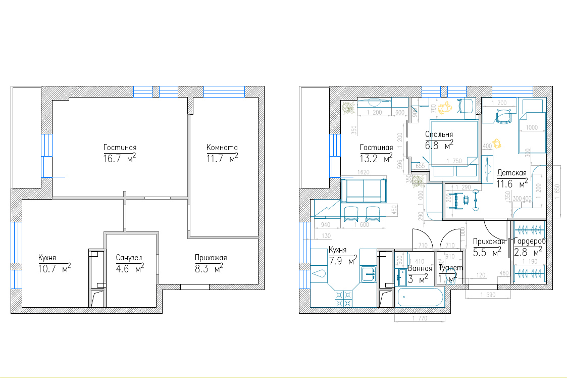
Молодая пара с четырехлетним сыном приобрела новую двухкомнатную квартиру. Но их привычному жизненному укладу жилье не соответствовало: зону для сна хотелось отделить от гостиной, санузел разделить, кухню сделать поменьше (в семье редко едят за столом и гораздо чаще – на диване перед телевизором), оборудовать отдельную гардеробную, а входную зону убрать подальше от основного прохода.

Самостоятельно с такой головоломкой супругам справиться оказалось не под силу, поэтому они обратились за помощью к дизайнеру. Дизайн-проект они в целях экономии бюджета заказывать не стали, ограничившись помощью в разработке планировочного решения.

 

На момент обращения к специалисту у пары была только одна идея: двуспальная кровать трансформер за стеклянными сдвижными дверями. Во время приема гостей ее можно складывать и раздвигать перегородки, чтобы освободить дополнительное место. Например, для игр детей.
В процессе работы возникли и другие идеи: кухонные подоконники, продолжающие рабочую поверхность, двустворчатый холодильник с антресолями и барная стойка, примыкающая к спинке дивана.
Несмотря на скромные размеры кухни-ниши, в ней удалось разместить все необходимое. Обилие окон обеспечило естественным освещением все комнаты, кроме санузлов и гардеробной.
Основной проход между комнатами и санузлами теперь проходит по прямой в стороне от входной двери.
Угол между коридором и гостиной образовал удачную нишу для встроенного шкафа с открытыми полками.
Книжный стеллаж разместился справа от телевизора.
За сдвижными перегородками - приватная зона родителей.
Помимо шкафа-кровати, ее оснастили туалетным столиком и парой комодов.
Детская неправильной формы тоже отвечает всем потребностям жильца. В ней есть и рабочий стол у окна, и полки для учебников, и полуторная кровать, и телевизор, и вместительный шкаф для вещей и игрушек, и даже уголок со спорткомплексом.
Санузел удалось разделить почти без ущерба для свободного пространства.
 
 
 
 

 

 

 


Площадь квартиры до перепланировки 52 квадратных метра.

Местоположение квартры – г. Москва.

Стоимость работы по подбору планировки – 5 тысяч рублей.

 

Отзыв клиента


  1. Евгений Золотухин:

    Маргарита – ответственный и высококвалифицированный специалист. Получил удовольствие от совместной работы и полученного результата. Всегда на связи и готова к обсуждению любого нюанса. Большое человеческое СПАСИБО!