Дом для большой семьи

Молодая семья с тремя детьми приобрела трехкомнатную квартиру с просторной кухней-гостиной. Жилье в новостройке сдавалось уже с отделкой, но базовый ремонт не отвечал требованиям владельцев. Для того, чтобы усовершенствовать свои квадратные метры, пара обратилась к дизайнеру.

 

 

 
 
 
 
 
 
 
 
 
 
 
 
 
 
 
 
 
 
 
 
 
 
 
 
 
 
 
 
 
 
 
 
 
 

 

 

 


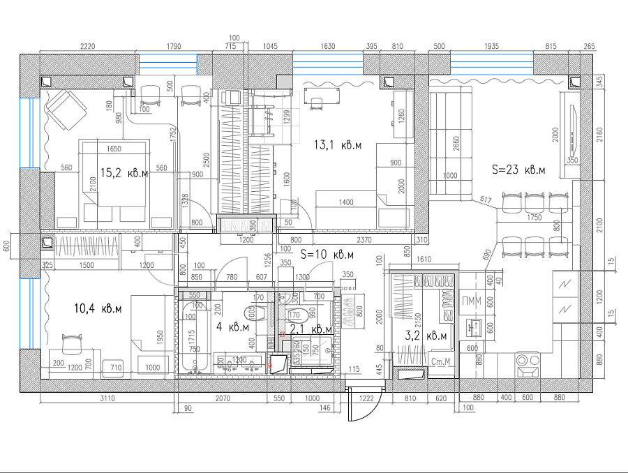
Площадь квартиры до перепланировки 83 квадратных метра

Местоположение квартиры — М.О, г. Красногорск

Стоимость проекта — 70 000 рублей